Sycamore School Road Station Area TOD Plan
Location
Fort Worth, Texas
Scope of Work
- Market Analysis
- TOD Planning
- Urban Design
- Redevelopment Planning
- Public Involvement
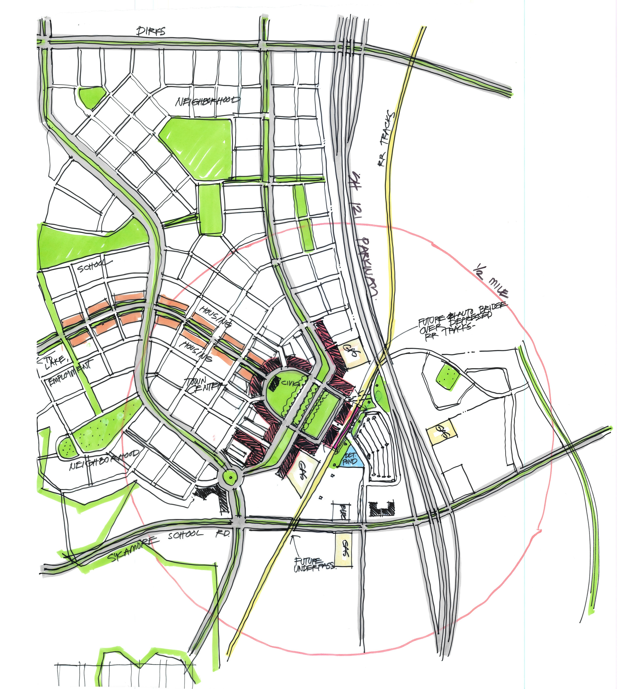
Project Description
Mark Leese led the station and TOD planning efforts, including:
- Station planning, including concept development and integration with local development plans for 14 commuter rail stations.
- Station area planning, including working with local jurisdictions along the corridor to develop transit-supportive land use and transportation plans for all 14 stations.
- TOD plans for seven stations along the corridor, including economic and real estate analysis (including absorption potential for residential, commercial, and retail), building massing, and shared parking plans.
Mark Leese’s Role
Mark Leese provided TOD planning, urban design, public meeting facilitation, graphics, research, and documentation services while with a previous firm.
