104th Avenue Station Area Master Plan
Location
Thornton, Colorado
Scope of Work
- Transit Oriented Development Planning
- Public Involvement
- Urban Design
Team Members
Steer Davies Gleave; Leese & Associates; Arland Land Use Economics; CDR Associates; Project Vision 21
Related Links
"Thornton Crossroads at 104th" Station Area Master Plan
Project Description
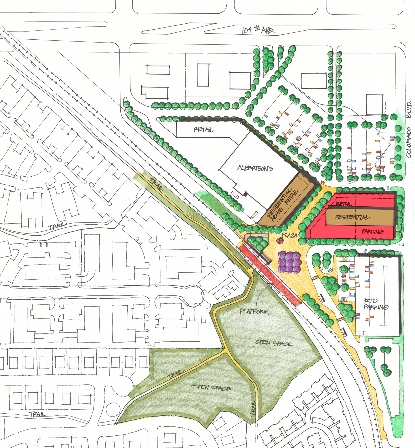
The project provided planning guidance that will enable and encourage transit supportive development in the developable areas within a half-mile radius of the commuter rail station to be located just south of 104th Ave and west of Colorado Boulevard. The project resulted in the relocation of a large storm water detention basin from the station site to the other side of Colorado Boulevard (allowing for a better transit station plan) and the final positioning of the station platform to a location better suited for integration with the existing development. Housing development that was planned for the east side of Colorado Boulevard is now underway. The drawing below shows one of four areas for which development /redevelopment plans were prepared.
Leese & Associates’ Role
Leese & Associates provided transit-oriented development planning and urban design.
Team Members
Steer Davies Gleave; Leese & Associates; Arland Land Use Economics; CDR Associates; Project Vision 21
